Construction
当社の医院、薬局建築の施工実績をご紹介します
三和メディコが薬局開業をお手伝いした事例のなかから、市場調査や物件探し、事業計画立案など、コンサルティング業務からトータルで開業をサポートした事例をご紹介します。
お客様のご要望
- 一つの建物に複数科目の医院と薬局を入れる
- 医院も含め、コンサルティングから設計、施工までお願いしたい
当社のご提案、対応
- 各医院、薬局(施主様)と打ち合わせ、コンサルティング
- 要望をくみ取りつつ、最適な設計
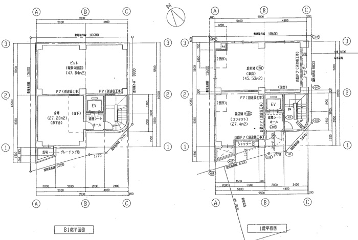
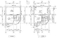
この事例は1つの建物に眼科、耳鼻科、薬局を併設する、ちょっと特殊なものでした。当社は調剤薬局のコンサルティングはもちろん、医院のコンサルティングも手掛けており、今回は同時進行で進めました。
資金、事業計画はもちろん、各施主様のご意向をくみ取りながらの設計、コンサルティングを行いました。
設計のポイント
各施主様のご意見をくみ取りつつ、階数を決定しました。
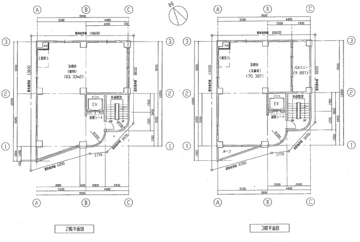
病院と同一建物内にある場合、病院から薬局へ行く際には一度公道に出なければならない、という規制があるため、それに沿った設計を行ったのがポイントです。
また、3階建てのため、無理なく3階までいけるよう、エレベーターも設置しました。
三和メディコが手掛けた店舗のリニューアル事例をご紹介します。⇒ 薬局開業専門サイトはこちらへ
お客様のご要望
- 長年やってきて、商品数が増えたり、在庫を保管しておく場所がなくなり手狭になったので、拡張、リニューアルしたい
当社のご提案、対応
- 隣の店舗が空いたこともあり、拡張も含めたリニューアルをご提案
長年調剤薬局を運営していると、お客様のご要望などで商品数が増えたり、在庫を保管してく場所の問題は必ず出てくるものです。運営当初からそこまで考慮した設計が出来ればベストですが、なかなかそうもいかないものです。今回はそのような薬局様からご依頼をいただきました。
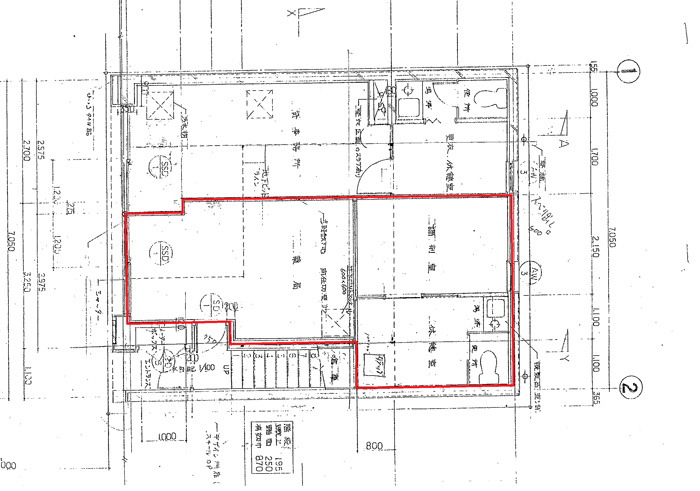
赤い線で囲んだ部分が以前の薬局スペースです。薬局の隣にほかの店舗がありましたが、退去するとのことで、リニューアルに合わせ、拡張することになりました。
他の店舗が隣接していました。カウンターが斜めにあったため、奥に行くほど狭くなってしまっていました。調剤室も手狭になってしまっていたため、効率的に動くことが難しい状況でした。
拡張したことで、調剤室のスペースも広げ、ゆとりを持たせることが出来ました。また、以前は待合室も狭かったため、お客様にご不便をかけることもありましたが、広くスペースを確保することができました。
拡張したことで、動きやすい調剤室になり、また、分包器などを置くスペースも出来たため、より効率的になりました。
待合室にもゆとりが生まれ、テレビを配置することで、お待ちいただいている間も快適な空間になりました。
施工実績
当社が今までに施工した実績です
| 医院名 | 場所 |
|---|---|
| 愛信医院 | (東京都 杉並区) |
| 葵診療所 | (東京都 港区) | 青木医院 | (東京都 江東区) | 赤羽南クリニック | (東京都 北区) | 赤門整形外科 | (千葉県 館山市) | 秋田医院 | (東京都 練馬区) | 明野中央病院 | (茨城県 真壁郡) | 浅草橋こころのクリニック | (東京都 台東区) | 浅利医院 | (東京都 練馬区) | 足立医院 | (東京都 国立市) | 厚木こどもクリニック | (神奈川県 厚木市) | あめみや内科クリニック | (東京都 町田市) | 荒井クリニック | (東京都 大田区) | 新井整形外科 | (東京都 大田区) | 荒瀬医院 | (東京都 板橋区) | 井垣医院 | (東京都 板橋区) | 五十嵐医院 | (東京都 北区) | 池村皮膚科 | (埼玉県 狭山市) | 石川整形外科 | (東京都 新宿区) | 石田クリニック | (東京都 調布市) | 石原医院 | (東京都 大田区) | 石山医院 | (東京都 東大和市) | 市川医院 | (千葉県 松戸市) | いちべ眼科 | (東京都 町田市) | いなげ海岸クリニック | (千葉県 千葉市) | 井上耳鼻咽喉科 | (埼玉県 越谷市) | 井の頭通りクリニック | (東京都 杉並区) | 井村クリニック | (神奈川県 相模原市) | 岩佐クリニック | (東京都 北区) | 岩崎医院 | (千葉県 山武郡) | 上野動物医院 | (東京都 台東区) | 浮間小児科クリニック | (東京都 北区) | 内山内科医院 | (東京都 台東区) | 海老原医院 | (茨城県 取手市) | 遠藤医院 | (東京都 足立区) | 遠藤内科クリニック | (東京都 足立区) | 尾泉医院 | (東京都 台東区) | 王子台動物病院 | (千葉県 佐倉市) | 大泉内科クリニック | (東京都 荒川区) | 大塚内科クリニック | (千葉県 佐倉市) | 岡本クリニック | (東京都 渋谷区) | 小川眼科 | (東京都 台東区) | 沖クリニック | (東京都 小平市) | 御茶ノ水聖橋クリニック | (東京都 文京区) | 小原病院 | (東京都 中野区) | オルタクリニック | (神奈川県 横浜市) | 柏東口皮膚科・内科 | (千葉県 柏市) | かたやま内科 | (東京都 狛江市) | 加藤医院 | (東京都 荒川区) | 加藤鍼灸院 | (東京都 品川区) | 加藤皮膚科 | (神奈川県 伊勢原市) | 神奈川高座病院 | (神奈川県 藤沢市) | 金子皮膚科医院 | (埼玉県 川口市) | 鎌田医院 | (神奈川県 川崎市) | 上里内科クリニック | (神奈川県 藤沢市) | 上連雀内科クリニック | (東京都 三鷹市) | からさわクリニック | (東京都 国立市) | 苅谷動物病院 | (千葉県 市川市) | 苅谷動物病院 | (東京都 江戸川区) | 苅谷動物病院 | (東京都 江東区) | 河合医院 | (東京都 杉並区) | 河井内科クリニック | (東京都 目黒区) | 川崎メンタルクリニック | (神奈川県 川崎市) | 河田町クリニック | (東京都 新宿区) | 川端医院 | (神奈川県 横浜市) | 川村内科・循環器科 | (神奈川県 川崎市) | 木崎クリニック | (群馬県 新田郡) | 木下循環器クリニック | (東京都 武蔵野市) | 清洲クリニック | (東京都 板橋区) | 倉品医院 | (神奈川県 厚木市) | 黒川内科医院 | (東京都 練馬区) | 黒須医院 | (千葉県 富里市) | 源一クリニック | (東京都 文京区) | 江クリニック | (東京都 品川区) | 小島歯科 | (神奈川県 愛川町) | 児玉整形外科 | (東京都 品川区) | 小森クリニック | (東京都 世田谷区) | これむら医院 | (神奈川県 横浜市) | 斉藤クリニック | (茨城県 竜ケ崎市) | 斉藤外科胃腸科 | (埼玉県 上尾市) | 相模皮膚科 | (神奈川県 相模原市) | 佐藤内科医院 | (神奈川県 平塚市) | 里見皮膚科 | (東京都 世田谷区) | 佐原泌尿器クリニック | (千葉県 佐原市) | 三省堂耳鼻咽喉科医院 | (茨城県 古河市) | 柴崎医院 | (神奈川県 横須賀市) | 島井内科・小児科クリニック | (埼玉県 志木市) | 清水医院 | (東京都 台東区) | 志村橋外科 | (東京都 板橋区) | 城北診療所 | (東京都 足立区) | 白壁医院 | (東京都 渋谷区) | 信愛クリニック | (神奈川県 茅ヶ崎市) | 新葛西病院 | (東京都 江戸川区) | 新宿石川病院 | (東京都 新宿区) | 新橋烏森整形外科 | (東京都 港区) | すい内科クリニック | (埼玉県 八潮市) | 菅井医院 | (千葉県 銚子市) | 杉田医院 | (東京都 調布市) | 杉本クリニック | (東京都 世田谷区) | スキンキュアクリニック | (東京都 新宿区) | 鈴木医院 | (千葉県 佐倉市) | すずきこどもクリニック | (神奈川県 秦野市) | 須藤整形外科 | (埼玉県 さいたま市) | 墨岡クリニック | (東京都 世田谷区) | 関根産婦人科 | (東京都 練馬区) | 関根整形外科医院 | (千葉県 千葉市) | 善方産婦人科 | (神奈川県 横浜市) | 大東外科 | (埼玉県 川越市) | 太陽ビルクリニック | (東京都 江東区) | 高井内科クリニック | (神奈川県 鎌倉市) | 高島医院 | (東京都 練馬区) | 高野内科耳鼻咽喉科医院 | (茨城県 牛久市) | 高橋医院 | (神奈川県 鎌倉市) | 高橋内科クリニック | (東京都 東村山市) | 滝沢医院 | (東京都 北区) | 竹島皮膚科医院 | (東京都 葛飾区) | 竹田クリニック | (埼玉県 春日部市) | 竹村クリニック | (神奈川県 相模原市) | 田代クリニック | (東京都 品川区) | 立花診療所 | (東京都 墨田区) | 館脇医院 | (埼玉県 三郷市) | 田中医院 | (埼玉県 川口市) | 田中医院 | (東京都 足立区) | 田中医院 | (東京都 北区) | 谷岡クリニック | (千葉県 柏市) | 千葉耳鼻科 | (東京都 調布市) | つだ小児科クリニック | (東京都 世田谷区) | 土屋医院 | (東京都 練馬区) | つつみクリニック | (東京都 板橋区) | 寺田病院 | (東京都 荒川区) | 土肥内科クリニック | (埼玉県 さいたま市) | 東京アスレチッククラブ診療所 | (東京都 中野区) | 東京大学医学部病院 | (東京都 文京区) | 同善病院 | (東京都 台東区) | 東大ゲノム | (東京都 文京区) | どうたれ内科診療所 | (千葉県 松戸市) | 東立病院 | (東京都 葛飾区) | 土岐医院 | (神奈川県 横浜市) | 土橋クリニック | (東京都 世田谷区) | 富田耳鼻咽喉科医院 | (東京都 練馬区) | 豊田クリニック | (埼玉県 草加市) | 内藤クリニック | (神奈川県 横浜市) | 永井外科 | (東京都 葛飾区) | 中井皮膚科 | (埼玉県 越谷市) | 中野医院 | (神奈川県 平塚市) | 中野総合病院 | (東京都 中野区) | 仲町クリニック | (東京都 世田谷区) | 永峯医院 | (東京都 目黒区) | 仲谷クリニック | (東京都 豊島区) | 永山外科 | (東京都 江東区) | 並木医院 | (東京都 大田区) | 成島クリニック | (茨城県 つくば市) | 西新井内科クリニック | (東京都 足立区) | 西川医院 | (埼玉県 川越市) | 西野整形外科 | (東京都 北区) | 日暮里医院 | (東京都 荒川区) | 野崎クリニック | (東京都 武蔵野市) | ハーモネスタワークリニック | (埼玉県 草加市) | 橋本北口耳鼻咽喉科 | (神奈川県 相模原市) | 馬場クリニック | (東京都 港区) | 林医院 | (東京都 杉並区) | 林皮膚科クリニック | (神奈川県 厚木市) | はやみ医院 | (東京都 練馬区) | 原医院 | (東京都 練馬区) | 原メディカルクリニック | (東京都 練馬区) | 東川口クリニック整形外科内科 | (埼玉県 川口市) | 東川口動物病院 | (埼玉県 川口市) | ひかり内科クリニック | (千葉県 船橋市) | 皮膚科さくらクリニック | (埼玉県 さいたま市) | 桧山内科クリニック | (千葉県 佐倉市) | 広瀬病院 | (埼玉県 八潮市) | 深沢クリニック | (東京都 世田谷区) | 深見医院 | (東京都 足立区) | 藤崎診療所 | (埼玉県 入間市) | 藤沢内科消化器科医院 | (神奈川県 藤沢市) | 藤田胃腸科クリニック | (東京都 港区) | 富士病院 | (東京都 北区) | ふじみ野内科クリニック | (埼玉県 富士見市) | ボク上池台クリニック | (東京都 大田区) | 星野クリニック | (東京都 葛飾区) | 堀田医院 | (千葉県 千葉市) | 堀内クリニック | (東京都 新宿区) | 堀江クリニック | (埼玉県 川口市) | 真木クリニック | (千葉県 鴨川市) | まきのクリニック | (東京都 世田谷区) | 松山クリニック | (東京都 品川区) | 三郷医師会 | (埼玉県 三郷市) | 三郷皮膚科 | (埼玉県 三郷市) | みどりクリニック | (栃木県 那須市) | みどり病院 | (神奈川県 横浜市) | 南大沢婦人科皮膚科クリニック | (東京都 八王子市) | 南与野駅前内科 | (埼玉県 さいたま市) | 三ノ輪病院 | (東京都 荒川区) | 雅クリニック | (埼玉県 川口市) | 宮本産婦人科 | (東京都 練馬区) | 向医院 | (東京都 練馬区) | 武蔵小金井クリニック | (東京都 小金井市) | 武蔵野寮園病院 | (東京都 中野区) | 村上診療所 | (東京都 江戸川区) | 村田医院 | (東京都 世田谷区) | メディカルハニークリニック | (東京都 新宿区) | 森崎医院 | (東京都 江東区) | 山下整形外科 | (神奈川県 川崎市) | 山部内科クリニック | (神奈川県 横浜市) | 山本クリニック | (埼玉県 南埼玉郡) | 山本皮膚科 | (東京都 練馬区) | ユーカリ内科クリニック | (千葉県 佐倉市) | 弓削医院 | (東京都 中央区) | 湯本皮膚科クリニック | (千葉県 市川市) | 吉野内科医院 | (東京都 荒川区) | 雷駒込クリニック | (東京都 豊島区) | 早稲田クリニック | (東京都 新宿区) |
| 薬局名 | 場所 |
|---|---|
| 愛甲調剤薬局 | (神奈川県 厚木市) | あおば薬局 | (東京都 墨田区) | あおば薬局 | (神奈川県 横浜市) | あおば薬局 | (東京都 中央区) | 赤塚薬局 | (埼玉県 川越市) | 茜薬局大塚店 | (東京都 豊島区) | あけぼの薬局 | (東京都 葛飾区) | 芦田薬局 | (千葉県 市川市) | アツミ調剤薬局 | (東京都 荒川区) | アライ薬局 | (東京都 三鷹市) | ありす薬局 | (千葉県 船橋市) | 泉澤薬局 | (千葉県 市川市) | いちご薬局 | (東京都 台東区) | 伊藤薬局 | (東京都 狛江市) | 岩澤薬局 | (神奈川県 茅ヶ崎市) | 内坪薬局 | (東京都 府中市) | 梅島薬局 | (東京都 足立区) | エステート薬局 | (東京都 新宿区) | 扇橋薬局 | (東京都 江東区) | おか調剤薬局 | (埼玉県 さいたま市) | おか調剤薬局 さいたま東店 | (埼玉県 さいたま市) | 緒方薬局 | (千葉県 八街市) | オリーブ薬局 | (埼玉県さいたま市) | 春日薬局 | (東京都 文京区) | 片山薬局 | (東京都 板橋区) | 金子皮膚科医院 | (埼玉県 川口市) | かみごう薬局 | (埼玉県 上尾市) | カワセ薬局 | (神奈川県 横浜市) | 境南調剤薬局 | (東京都 武蔵野市) | きり薬局 | (東京都 荒川区) | 椚田薬局 | (東京都 八王子市) | 慶應堂薬局 | (東京都 新宿区) | けやき薬局 | (東京都 板橋区) | 健康堂薬局 | (神奈川県 大和市) | 斉藤薬局 | (東京都 江東区) | 斉藤薬局 | (東京都 渋谷区) | 桜台調剤薬局 | (東京都 練馬区) | 三共堂調剤薬局 | (東京都 西多摩郡) | 三の橋薬局 | (東京都 港区) | 三和薬局 | (東京都 練馬区) | 昭和堂薬局 | (埼玉県 越谷市) | 新町調剤薬局 | (東京都 西東京市) | しんぼり薬局 | (東京都 杉並区) | 新陽堂薬局 | (東京都 足立区) | スミキョウコンタクト | (東京都 町田市) | 成和薬局 | (東京都 杉並区) | 蘇我駅前薬局 | (千葉県 千葉市) | たかはし調剤薬局 | (東京都 荒川区) | つくし薬局 | (東京都 台東区) | とどろき薬局 | (千葉県 千葉市) | ドラック・ヒロ | (東京都 葛飾区) | 内観堂薬局 | (埼玉県 和光市) | 中板橋薬局 | (茨城県 取手市) | 成瀬が丘薬局 | (東京都 町田市) | ニイナ薬局 | (東京都 世田谷区) | ニイナ薬局 並木通店 | (東京都 世田谷区) | にしかわ薬局 | (神奈川県 横浜市) | 西台ファミリー薬局 | (東京都 板橋区) | 西野薬局 | (東京都 杉並区) | 西野薬局高井戸南口店 | (東京都 杉並区) | 西宮下薬局 | (埼玉県 上尾市) |
| ハヤブサ薬局 | (東京都 大田区) | 日の出薬局 荒川店 | (東京都 荒川区) | 日の出薬局 金井店 | (東京都 町田市) | 日の出薬局 橋本店 | (神奈川県 相模原市) | ヒロキ薬局 | (東京都 小平市) | ファースト薬局 | (埼玉県 北葛飾郡) | ベイ薬局 大岡山店 | (東京都 大田区) | ベイ薬局 扇橋店 | (東京都 江東区) | ベルファーマシー | (東京都 板橋区) | 弁財薬局 | (埼玉県 朝霞市) | 保木間団地薬局 | (東京都 足立区) | 前堀薬局 | (東京都 大田区) | みつば薬局 | (千葉県 佐倉市) | みつばち薬局 | (東京都 江東区) | みつばち薬局 高円寺店 | (東京都 杉並区) | ミツワ薬局 柴又店 | (東京都 葛飾区) | 水戸薬局 第二高砂店 | (東京都 葛飾区) | みなと薬局 | (東京都 台東区) | 村瀬ファーマシー | (東京都 板橋区) | 村瀬ファーマシー 東中野店 | (東京都 中野区) | 有限会社赤塚薬局 | (東京都 板橋区) | 友好薬局 | (東京都 文京区) | 横川調剤薬局 | (東京都 墨田区) |

地下1階、1階平面図
2階、3階平面図
建物外観1
建物外観2
リニューアル前平面図
リニューアル前内装
リニューアル前入口
リニューアル後平面図
リニューアル後内装